Nordkap 110 Schwedenhaus

Nordkap 110 Schwedenhaus

Genießen Sie offenes Wohnen mit freiem Blick auf die Terrasse.

Unser Einsteiger haus

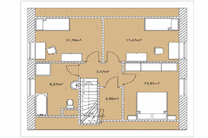
Treten Sie ein in unsere Welt der Schwedenhäuser. Genießen Sie offenes Wohnen mit freiem Blick auf die Terrasse, egal ob zum Frühstück oder in der Abendsonne. Dieses Haus bietet u. a. einen großzügigen Hauswirtschaftsraum und ein Gästebad mit Dusche. Und ein Kamin im Wohnzimmer rundet das Ambiente ab. Im Obergeschoß befinden sich drei Schlafzimmer und ein Allrum - also Platz für die kleine Computerecke oder auch als erweiterte Spielwiese für die Kleinen.

Interesse?
Fragen Sie uns einfach!

Eckdaten

  • Klassisches Schwedenhaus
  • 110m² Wohnfläche
  • Energieklasse: A+
  • 5 Zimmer
  • 1,5 geschossig

Ausstattung EG

  • Küche- Wohn-/ Esszimmer
  • Hauswirtschaftsraum
  • WC

Ausstattung OG

  • 3 Schlafzimmer
  • Badezimmer

Besonderheiten EG

  • offener Wohnbereich
  • großer Hauswirtschaftsraum
  • Zugang zur Terrasse / Garten

Besonderheiten OG

  • Allrum als Computerecke oder Spielfläche nutzbar
Aussendienst Berg Schwedenhaus GmbH

Berg Schwedenhaus GmbH

Wir planen und bauen für Sie als Familenbetrieb Ihr Schwedenhaus von A bis Z

Kontakt

Sie haben Fragen, Wünsche, Anregungen? Dann kontaktieren Sie uns. Am besten hier direkt über das Kontaktformular, ansonsten gerne per Email oder Telefon. Wir freuen uns auf Sie.

Baum 1 Baum 1 Baum 1
Natur Hintergrund
cookie